西门子STEP7 软件进行组态G120变频器

2022年7月2日 48点热度 0人点赞

以太网挂网组态

方法/步骤

  1. 1

    打开STEP7 打开组态画面找到G120的GSD文件拖入组态画面中

     

    组态G120变频器和PLC

     

  2. 2

    设置G120变频器报文类型这里选择352的报文类型

     

  3. 3

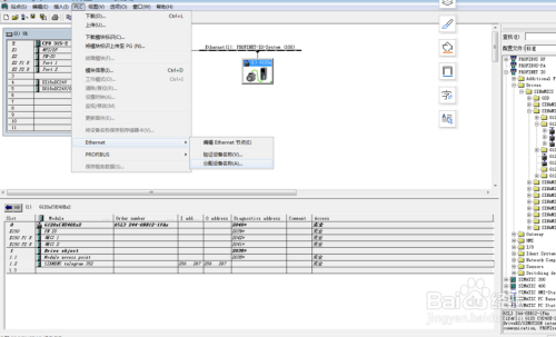
    分配设备名称

     

  4. 4

    分配一个设备名称

     

  5. 5

    编译选择相应的PLC下载程序

     

  6. 6

    编写程序控制  变频器第一个字控制状态  第二个字给速度

     

    END
经验内容仅供参考,如果您需解决具体问题(尤其法律、医学等领域),建议您详细咨询相关领域专业人士。

展开阅读全部

laozhao

这个人很懒,什么都没留下

文章评论