怎样看懂定制衣柜图纸

方法/步骤
-
1
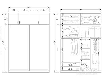
对于衣柜、鞋柜等的CAD图,主要就是看它的正立面图(当然,它还应该包含侧立面和平面图)。

-
2
这个正立面图又分为外观立面图(即柜门关闭时的立面图)和内部结构立面图(柜门开启后所看到的衣柜、鞋柜等的内部构造立面图)。

-
3
通常在不同的CAD立面图下方都会有文字说明。

-
4
其次,在看图的时候一定要仔细看清它所标注的尺寸及比例。对于一些细部结构,如有必要,作图者会以大样图来另作说明。

-
5
第三是注意看CAD图纸上的文字说明,它会对整个柜体所使用的材质、颜色、内部结构等,以及在图纸上未能或不易表现出来的一些细节进行详细解说。

-
6
这对于看图的人能够看懂图纸也是很有帮助的。
END
经验内容仅供参考,如果您需解决具体问题(尤其法律、医学等领域),建议您详细咨询相关领域专业人士。
展开阅读全部
文章评论