提起中国房价是让任何一个中国人都恐惧的词,但又不得不面对,房价这么贵,买房就更不能稀里糊涂,懂得什么样的房子是好房子,即使购买时房价不会将太多,但也能获得一些实惠

方法/步骤
-
1
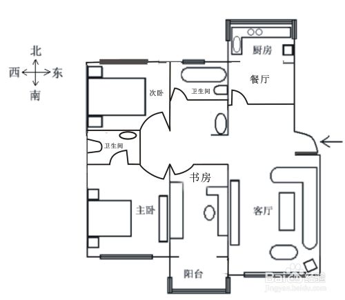
1、 方正。方正的房子整体利用率高。拐角会占用你的实际居住面积,如果家里人口本来就多,买的面积又不大的情况下,更加要选择方正的户型。这样才会让你实际居住环境最大化,另外,从风水上来说,方正的户型聚财养气


-
2
2、 南北通透。南北通透的房子通风效果较好,居住舒适,另外有些户型虽然被开发商称为“南北通透”其实是不算的。所谓的南北通透指的是贯穿客厅南北有窗户,能够保证空气对流,假南北通透户型的窗户一般都开在房间里面。


-
3
3、 客厅朝南。三房以上要考虑双卧朝南,不是双卧朝南的就不是好房,不管大户型还是小户型,客厅必须朝南,两居室也要考虑最起码1个朝南。


-
4
4、 避免走道。走道其实是对住房资源的浪费,很多房子的走道其实都很窄,不能放东西只能用于走,其实就是白白占用了面积,当然如果资金充裕,又喜欢有走道的感觉,那就另当别论了。


-
5
5、 阳台位于客厅。客厅没有阳台,在视觉上就会觉得房子很小,其次如果阳台位于卧室,那么房子的隐秘就得不到保证,有的年轻人喜欢过二人世界觉得无所谓,但是其实贩子一经购买,住的人一般只会增加不会减少,尤其是现代独生子女很多,买了房子父母要过来合住或短期居住的,没有独立的阳台就更加的不方便,阳台的位置,最好客厅一个,卧室一个。


-
6
6、 合理布置。所谓合理布置主要就是卧室门不能对着客厅,卫生间的门不能对着大门,主卧室要靠着厨房和卫生间,要注意动静分离、干湿分离和洁污分离。

END
注意事项
-
其实条件也要权衡,有时候不可能十全十美
文章评论